40
$798,900 Sale
Listed 2 hours ago
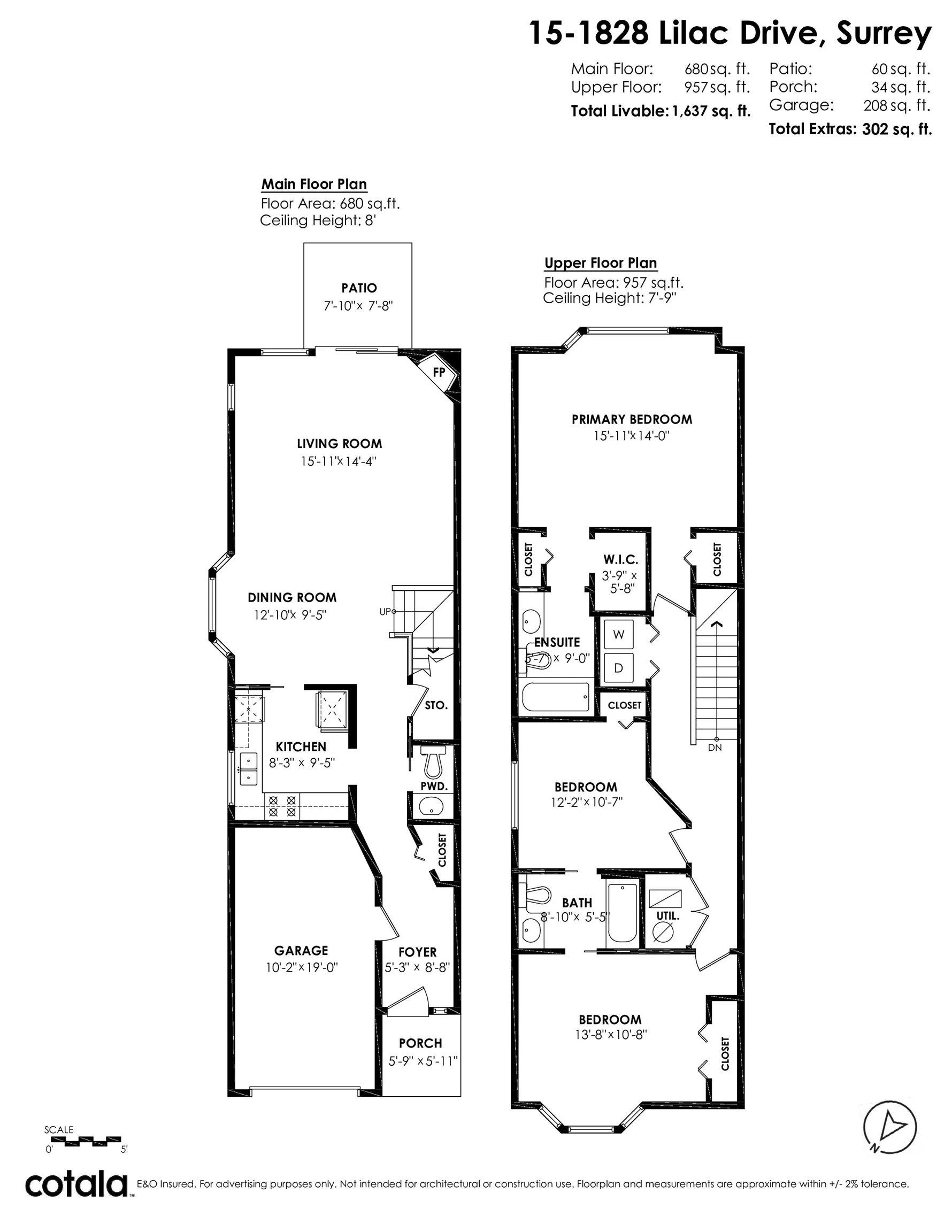
15 1828 Lilac Drive
· 3
· 3
· 2
· 1637
Key Facts
Key facts for 15 1828 Lilac Drive
Property Type
Townhome
Parking
1 garage, 2 parking
MLS #
R3053667
Size
1637 sqft
Basement
None
Listed on
-
Lot size
-
Tax
$3,059.31 /yr
Days on Market
-
Year Built
1996
Maintenance Fee
$313.37 /mo
Description
O/H Oct 4/5 2-4pm. SEE VIRTUAL TOUR! They don't make townhouses like this anymore! Welcome to Lilac Green and this 3 bed, 3 bath townhouse with over 1600sqft of living space in the heart of the King George Corridor in South Surrey! This end unit home offers as much convenience as it does practicalit...y. Tucked away from KG Blvd, you're close to White Rock Beach, Hwy 99, and the US Border. The main floor of the home has a 2pc powder room, open concept dining/living room, and walkout fully fenced yard space. Warm up in the fall and winter with a nice cozy gas fireplace. Upstairs features primary bedroom with a 4 piece ensuite and 2 additional generously sized bedrooms with a 4-piece jack & jill ensuite. Two bathtubs and laundry upstairs make this a very functional home for a young family.
Similar Properties (No results)
Room Types
Porch (enclosed)
-
Dimensions 5'11 x 5'9
34.02 sqft
Foyer
-
Dimensions 8'8 x 5'3
45.5 sqft
Kitchen
-
Dimensions 9'5 x 8'3
77.69 sqft
Courtesy of: Royal LePage - Wolstencroft